
รถยกขนาด 20 ตัน
ศูนย์รับน้ำหนัก: 900 มม
น้ำหนักการใช้งาน: 32,500 กก
ฐานล้อ: 4,000 มม
1 ใช้อุปกรณ์ไฟฟ้าที่มีคุณภาพสูงในประเทศแบตเตอรี่บำรุงรักษาฟรีความต้านทานต่อสายไฟของวัสดุหน่วงไฟที่เชื่อถือได้และทนทาน เคบินตรงกับพัดลมวิทยุแอร์ ...
HNF-200
โหลดสูงสุด: 20,000 กิโลกรัม
ศูนย์รับน้ำหนัก: 900 มม
น้ำหนักการใช้งาน: 32,500 กก
ฐานล้อ: 4,000 มม
1 ใช้อุปกรณ์ไฟฟ้าที่มีคุณภาพสูงในประเทศแบตเตอรี่บำรุงรักษาฟรีความต้านทานต่อสายไฟของวัสดุหน่วงไฟที่เชื่อถือได้และทนทาน ห้องโดยสารที่ตรงกับพัดลม, วิทยุ, เครื่องปรับอากาศ, จอแสดงผลย้อนกลับสามารถจับคู่กับเครื่องชั่งน้ำหนักได้ตามความต้องการของลูกค้า
2 เครื่องทั้งหมดมีความสวยงามและราบรื่น กระท่อมมุมมองที่หรูหรากว้างพร้อมกับสกายไลท์เสียงต่ำการปิดผนึกที่ดี
3, ชิ้นส่วน domestication, มาตรฐานที่มีประสิทธิภาพ, commonality ส่วนการจัดซื้อง่ายที่ดีการบำรุงรักษาประจำวันเป็นเรื่องง่ายและรวดเร็ว
4 ใช้กันอย่างแพร่หลายในสนามบินพอร์ตท่าเทียบเรือสถานีคลังสินค้าและความรุนแรงในการทำงานขนาดใหญ่สำหรับการขนถ่ายการจัดเรียงและการขนส่งทางไกล


กระบวนการทำงานของรถยกขนาด 20 ตัน
(A) ตรวจสอบยานพาหนะก่อนขับรถ
(1) ควรตรวจสอบรูปลักษณ์เติมน้ำมันเชื้อเพลิงน้ำมันหล่อลื่นและน้ำหล่อเย็นก่อนดำเนินการรถยก
(2) ตรวจสอบเริ่มต้นการทำงานและการเบรคประสิทธิภาพ ตรวจสอบว่าไฟและสัญญาณเสียงสมบูรณ์หรือไม่และพร้อมใช้งาน
(3) หลังการทำงานของรถยกควรตรวจสอบการรั่วไหลของน้ำมันและน้ำ
(4) เมื่อกระบวนการทำงานของรถยกควรตรวจสอบว่าความดันและอุณหภูมิเป็นปกติหรือไม่
(5) กรอกข้อมูลลงในบันทึกประจำวันของรถยก
(B) เริ่มต้นขวา
(1) ก่อนที่จะเริ่มมองไปรอบ ๆ และตรวจสอบให้แน่ใจว่าไม่มีสิ่งกีดขวางในการขับขี่ปลอดภัยนกหวีดแรกหลังจากที่เริ่มต้น
(2) เมื่อรถยกที่มีน้ำหนักบรรทุกเริ่มขึ้นผู้ขับขี่ควรตรวจสอบให้แน่ใจว่าสินค้ามีความเสถียรและเชื่อถือได้
(3) เริ่มต้นด้วยการเหยียบไฟเริ่มต้นอย่างช้าๆและมั่นคง
(C) การขับขี่ที่มั่นคง
(1) ขณะขับขี่ควรวางส่วนล่างของใบพัดให้สูงประมาณ 300-400 มม. ให้เอียงเสา
(2) ห้ามยกส้อมสูงเกินไปขณะขับขี่ การเข้าถึงไซต์งานหรือระหว่างทางเราควรคำนึงถึงว่ามีอุปสรรคอยู่บ้างไหม เมื่อโหลดทำงานถ้ายกพื้นสูงเกินไปจะเป็นการเพิ่มน้ำหนักโดยรวมของความสูงของรถยกและส่งผลต่อเสถียรภาพของรถยก
(3) หลังจากการปลดปล่อยควรวางส้อมลงไปที่ตำแหน่งการขับขี่ตามปกติแล้วเดินทาง
(4) เมื่อหมุนถ้ามีคนเดินเท้าหรือยานพาหนะในบริเวณใกล้เคียงสัญญาณจะต้องมีสัญญาณและการเลี้ยวความเร็วสูงเป็นสิ่งต้องห้าม การหมุนที่มีความเร็วสูงจะทำให้รถเสียเสถียรภาพด้านข้างและการให้ทิป
(5) รถยกสินค้าตกต่ำควรจะถอยหลังเพื่อป้องกันไม่ให้สินค้าตก
(6) รถยกในการดำเนินงานเพื่อให้สอดคล้องกับกฎจราจรของโรงงานจะต้องอยู่ด้านหน้าของยานพาหนะเพื่อรักษาระยะห่างที่ปลอดภัยบางอย่าง ห้ามใช้การเคลื่อนไหวของยานพาหนะในเบรค
(7) เมื่อรถวิ่งขึ้นและลงห้ามใช้เบรคโดยไม่ใช้กรณีพิเศษ
(8) ไม่มีกรณีที่ไม่เป็นพิเศษห้ามถือเบรคเมื่อรถเคลื่อนที่
(9) รถยกจากพวงมาลัยควบคุมล้อหลังก็ต้องให้ความสำคัญกับการแกว่งรถโพสต์เพื่อหลีกเลี่ยงการเริ่มต้นขับรถมักจะปรากฏปรากฏการณ์เร่งด่วนคมด่วน
(10) รถยกการเผาไหม้ภายในที่เปิดบนทางลาดไม่ควรเคลื่อนที่ข้ามทางลาด
(11) ห้ามเล่นทางลาดและไม่เดินทางข้ามทางลาด
(12) เมื่อรถยกกำลังทำงานโหลดต้องอยู่ในตำแหน่งที่ต่ำสุดโดยไม่มีสิ่งกีดขวางและควรวางตัวโครงไว้อย่างถูกต้องและไม่ควรเพิ่มภาระในระหว่างการวางซ้อนหรือการโหลด ในการจัดการวัตถุขนาดใหญ่วัตถุจะปิดกั้นสายตาของคนขับให้พอดีกับรถยก
(13) รถยกเข้าและออกจากห้องเวิร์คช็อปการหมุนย้อนกลับและการข้ามต้องเป็นเสียงแตรเพื่อป้องกันการเกิดอุบัติเหตุ

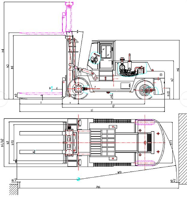
พารามิเตอร์ของรถยกขนาด 20 ตัน
ชิ้น | รายละเอียดของรายการ | หน่วย | |||
HNF-180 | HNF-200 | HNF-220 | |||
คุณสมบัติ | โหลดที่นิยม | Q (t) | 18 | 20 | 22 |
โหลดศูนย์ | ค (mm) | 900 | 900 | 900 | |
ฐานล้อ | Y (mm) | 3500 | 4000 | 4000 | |
น้ำหนัก | น้ำหนัก | กิโลกรัม | 26000 | 32500 | 33500 |
เพลารถ | ข้อกำหนดยาง: ด้านหน้า | 12.00-24-18PR | 14.00-24-28PR | 14.00-24-28PR | |
รายละเอียดยาง: ย้อนกลับ | 12.00-20-18PRR | 14.00-24-28PR | 14.00-24-28PR | ||
จำนวนยางรถ, ด้านหน้า / ด้านหลัง (ล้อ X-drive) | 4 \ 2 | 4 \ 2 | 4 \ 2 | ||
ล้อยาง: ด้านหน้า | B10 (mm) | 2060 | 2200 | 2200 | |
ล้อดอกยาง: ด้านหลัง | b11 (mm) | 2330 | 2390 | 2390 | |
มิติ | มุมเอียง / แคร่รถ (ด้านหน้า / ด้านหลัง) | ระดับ) | 6 \ 12 | 6 \ 12 | 6 \ 12 |
เสาสูง (ลดต่ำลง) | h1 (mm) | 3625 | 3860 | 3860 | |
เสายกสูง | h3 (mm) | 3500 | 3500 | 3500 | |
ความสูง Max.lifting | h4 (mm) | 5375 | 5610 | 5610 | |
ความสูงเพื่อป้องกันศีรษะ (ความสูงจากรถแท็กซี่) | H6 (mm) | 3365 | 3510 | 3510 | |
ความสูงโดยรวม (พร้อมส้อม) | L1 (mm) | 7640 | 8340 | 8340 | |
ดึงพื้นผิวหน้าไปทางด้านหลังของรถ | L2 (mm) | 5840 | 6345 | 6345 | |
ความกว้างโดยรวม | B1 / B2 (mm) | 2750 | 3050 | 3050 | |
ขนาด Fork | s / E (mm) | 1800X200X100 | 2000X260X100 | 2000X260X100 | |
ความกว้างของรถยกส้อม | b3 (mm) | 2380 | 3060 | 3060 | |
การกวาดล้างดิน Mast min (พร้อมภาระ) | m1 (mm) | 265 | 300 | 300 | |
ระยะห่างพื้นสนามยางมะตอยระยะห่าง (พร้อมภาระ) | m2 (mm) | 325 | 420 | 420 | |
รัศมีต่ำสุด | วา (mm) | 5800 | 6250 | 6250 | |
ความเร็วในการเดินทาง (พร้อมโหลด / ไม่มีโหลด) | กิโลเมตร / ชั่วโมง | 26/30 | 26/30 | 26/30 | |
ประสิทธิภาพ | ความเร็วสูงสุด (มีโหลด / ไม่มีโหลด) | มิลลิเมตร / วินาที | 250/260 | 260/270 | 260/270 |
Max.Lowering speed (มีโหลด / ไม่มีโหลด) | มิลลิเมตร / วินาที | 430/330 | 310/260 | 310/260 | |
แรงฉุด | ยังไม่มีข้อความ | 15000 | 17000 | 17000 | |
Gradeablity (มีโหลด / ไม่มีโหลด) | % | 20/21 | 20/22 | 20/22 | |
เบรคขับ | แผ่นหนีบไฮดรอลิค | แผ่นหนีบไฮดรอลิค | แผ่นหนีบไฮดรอลิค | ||
แบรนด์ / รุ่นเครื่องยนต์ | ตัวเลือกหนึ่ง | เครื่องยนต์ Yuchai | เครื่องยนต์ Weichai | เครื่องยนต์ Weichai | |
เครื่องยนต์ | YC6J175-T302 | WP10G220E343 | WP10G220E343 | ||
ตัวเลือกที่สอง | Dongfeng Cummins | Dongfeng Cummins | Dongfeng Cummins | ||
QSB6.7-C190 | QSC8.3-C215 | QSC8.3-C215 | |||
กระบอกหมายเลข | 6 | 6 | 6 | ||
คนอื่น ๆ | เกียร์เกียร์ (ด้านหน้า / ด้านหลัง) | 2 \ 1 | 2 \ 1 | 2 \ 1 | |
แนบความดันในการทำงาน | บาร์ | 160 | 180 | 180 | |
สิ่งที่แนบมาโดยใช้ปริมาณน้ำมัน | ลิตร / นาที | 60 | 80 | 80 |
ป้ายกำกับยอดนิยม: รถยก 20 ตัน, ประเทศจีน, ผู้ผลิต, โรงงาน, ที่กำหนดเอง
คู่ของ
รถยก 25 ตันถัดไป
รถยกขนาด 18 ตันคุณอาจชอบ
ส่งคำถาม










